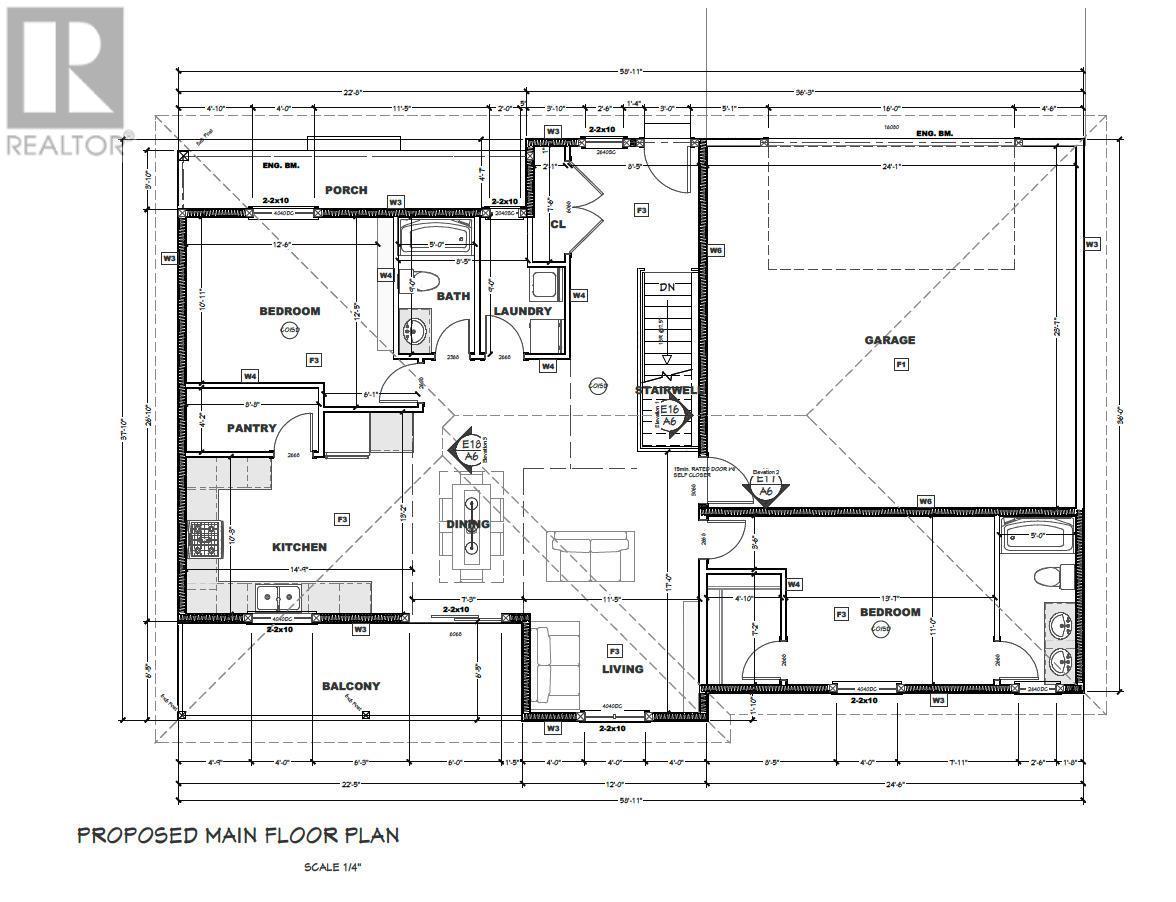
4609 41st Street, Osoyoos Rural, , V0H1V6
- 3 Beds
- 2 Baths
- 1,950 SqFt
Single Family
Osoyoos, British Columbia
Lakeview Home Located On The Desirable East Bench Of Osoyoos. Three Bdrm, Two Bath Home With A Full In-law Suite On The Lower Level. The Home Is Fabulous For Entertaining With A Very Private Back Yard, Heated Saltwater Swimming Pool, Colore ...(more)











































































