2680 Cedar Ridge Street Unit# Proposed Phase 2 Lot# 1 & 2. Lumby, British Columbia V0E2G5
Description
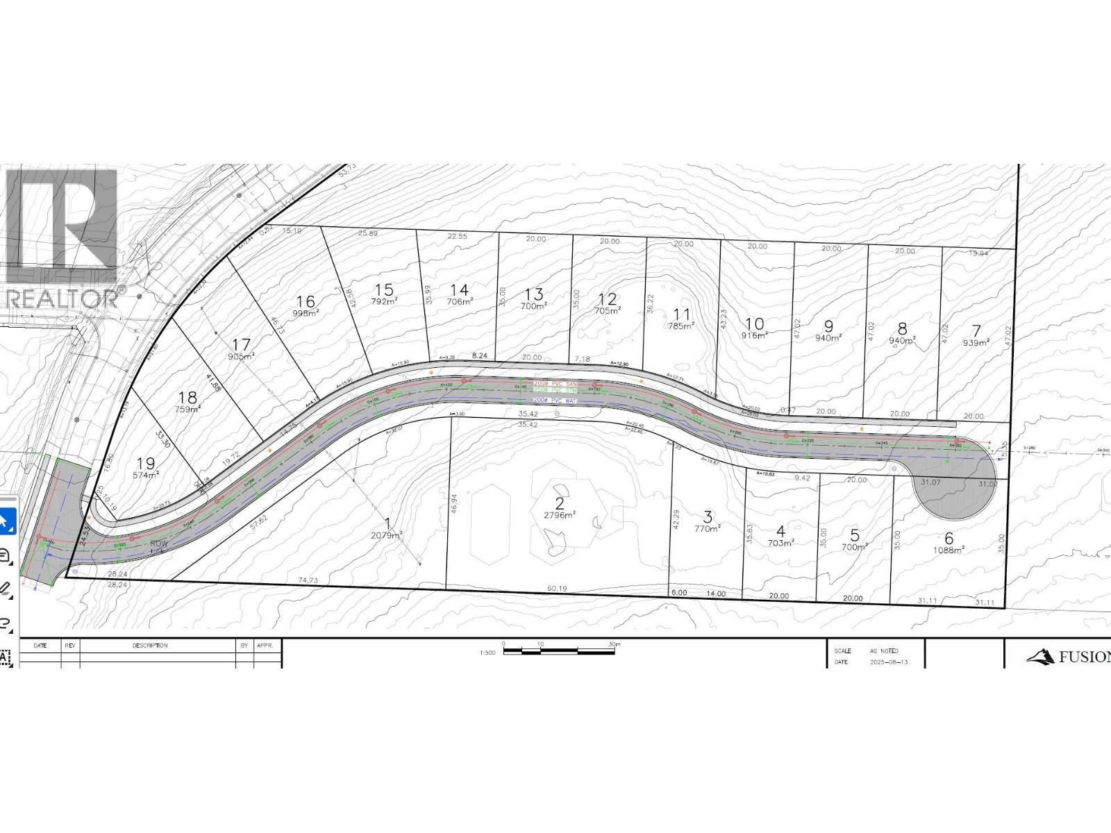
LAND ASSEMBLY – DEVELOPMENT OPPORTUNITY (SUNTOWER SUBDIVISION) Phase 2, Lots 1 and 2 of the Suntower subdivision are now offered as a combined land assembly, presenting an exceptional opportunity for builders, investors, or long-term landholders. Both lots will be delivered with paved road access and full extended city service connections to the lot line, including 400-amp power, municipal water, storm, and sewer, creating a ready-to-build environment. Zoned R7 (Low-Density Residential/RV) within the Regional District of North Okanagan, the site supports single-family, two-family, and secondary-suite development, with a maximum 35% lot coverage and up to 2 storeys (10 m height limit). Based on zoning and lot dimensions, Lot 1 supports an estimated 15,659 Sq. Ft. of potential buildable floor area, while Lot 2 supports approximately 21,070, offering meaningful future redevelopment capacity as demand increases. Lot 2 also includes a beautifully maintained 4,156 sq. ft. log home built in 2004, featuring two primary bedrooms with ensuites, a main three-piece bath, and three generous loft-level bonus rooms. The main floor offers durable tile throughout with efficient in-floor heating powered by a pellet stove, plus a secondary electric option. Both the home and detached garage are finished with long-lasting clay tile roofing (30–80 year lifespan). The property also includes an attached double garage, allowing covered parking for up to five vehicles. This assembly provides strong holding value—ideal for renting out the existing home for 5–10 years to offset carrying costs—while preparing for future redevelopment aligned with the growth and demand of the Suntower subdivision (id:6289)
2680 Cedar Ridge Street Unit# Proposed Phase 2 Lot# 1 & 2 - Subdivision Statistics
| Avg. asking price | $1,386,704 |
| Price per sq. ft. | $433 |
| Median price | $724,900 |
| Number of homes for sale in Lumby Valley | 69 |
| Number of homes for sale in Lumby | 74 |
| Avg. Days on Market | N/A |
Essential Information
- Listing #10321471
- Price$1,500,000
- Bathrooms0.00
- Acres1.20
- TypeVacant Land
- Sub-TypeOther
Address
2680 Cedar Ridge Street Unit# Proposed Phase 2 Lot# 1 & 2
Utilities
Cable, Electricity, Natural Gas, Telephone, Sewer, Water
Exterior
- Lot DescriptionCul-de-sac
Community Information
- SubdivisionLumby Valley
- CityLumby
- ProvinceBritish Columbia
- Postal CodeV0E2G5
Amenities
- AmenitiesPark, Recreation, Schools
- FeaturesCul-de-sac
- ViewMountain view, Valley view
- Is WaterfrontYes
- WaterfrontWaterfront nearby
Interior
- Interior FeaturesDrywall











































































































































