1837 Shuswap Avenue. Lumby, British Columbia V0E2G0
Description
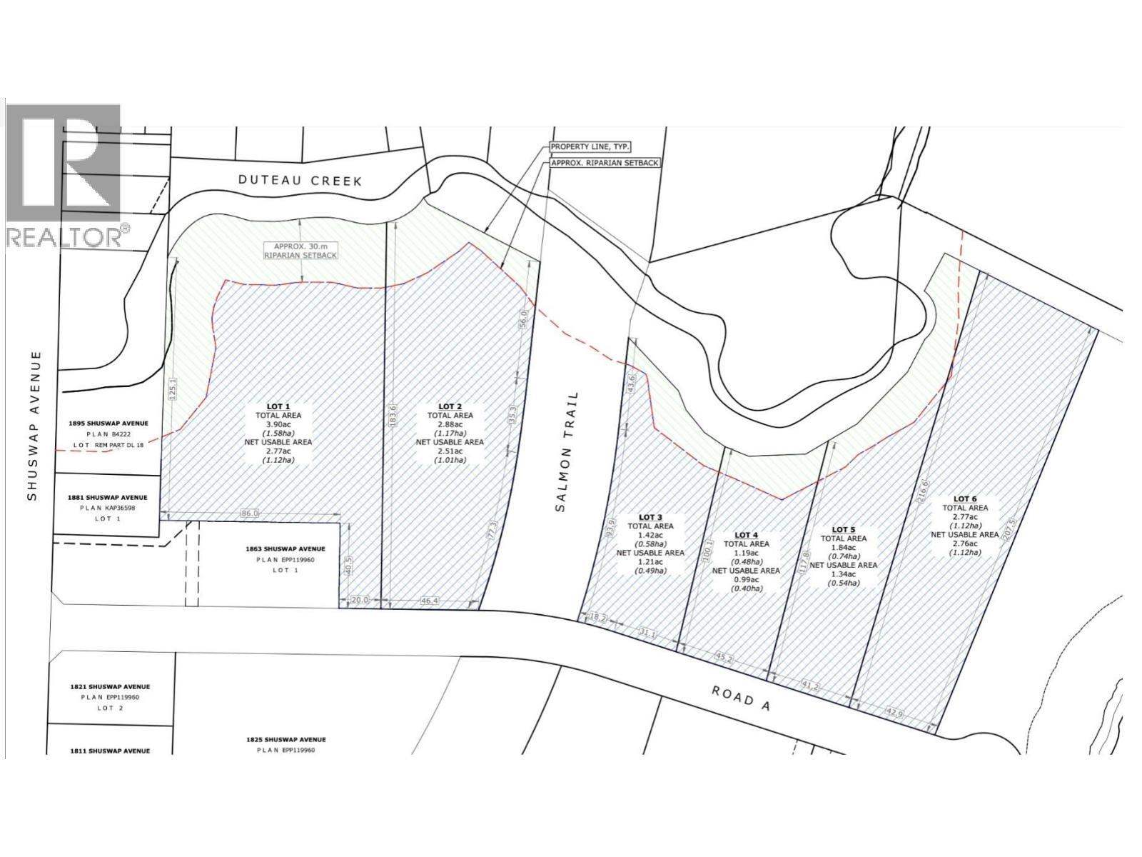
Prime industrial development opportunity – Monashee Light Industrial Park in Lumby. 14 acres of I2 Light Industrial land with an approved 6-lot subdivision plus a state-of-the-art 19,500 sq.ft. facility built in 2019 to food/pharmaceutical-grade standards. The building offers municipal water and sewer, 600V 3-phase power and a fully finished main floor with steel-framed second level, designed to GMP specifications for European export. Foundation for a second building. Subdivision has been approved by the Village of Lumby, with full underground services and road construction in progress. Approved lots range from approximately 1.19–3.90 acres (0.99–2.72 net usable acres), providing flexible options for owner-users or developers. This is one of the largest and most strategic industrial offerings in the North Okanagan – level site, municipal services, I2 zoning and excellent access. Individual titles by mid February. Six lots approved: *Lot 1 has 19,500sq ft Industrial Building built in 2019. 400,000$ per acre of net usable area: • Lot 1: 3.90 acres (1.58 ha), net usable 2.72 acres (1.12 ha) $2,890,000 • Lot 2: 2.88 acres (1.17 ha), net usable 2.51 acres (1.01 ha) $1,004,000 • Lot 3: 1.42 acres (0.58 ha), net usable 1.21 acres (0.49 ha) $484,000 • Lot 4: 1.19 acres (0.48 ha), net usable 0.99 acres (0.40 ha) $396,000 • Lot 5: 1.84 acres (0.74 ha), net usable 1.34 acres (0.54 ha) $536,000 • Lot 6: 2.77 acres (1.12 ha), net usable 2.72 acres (1.12 ha) $1,088,000 (id:6289)
1837 Shuswap Avenue - Subdivision Statistics
| Avg. asking price | $1,386,704 |
| Price per sq. ft. | $433 |
| Median price | $724,900 |
| Number of homes for sale in Lumby Valley | 69 |
| Number of homes for sale in Lumby | 74 |
| Avg. Days on Market | N/A |
Essential Information
- Listing #10325344
- Price$6,398,000
- Bathrooms0.00
- Square Footage19,500
- Acres14.50
- Year Built2019
- TypeIndustrial
- Sub-TypeOther
Amenities
- AmenitiesRecreation, Schools, Shopping
- FeaturesLevel lot, Irregular lot size
Exterior
- ExteriorMetal
- Exterior FeaturesLevel
- Lot DescriptionLevel lot, Irregular lot size
- RoofOther
Community Information
- Address1837 Shuswap Avenue
- AreaMonashee Gateway Industrial
- SubdivisionLumby Valley
- CityLumby
- ProvinceBritish Columbia
- Postal CodeV0E2G0
Interior
- Interior FeaturesDrywall
- HeatingForced air, See remarks
Listing Details
- Listing OfficeRE/MAX Vernon











































