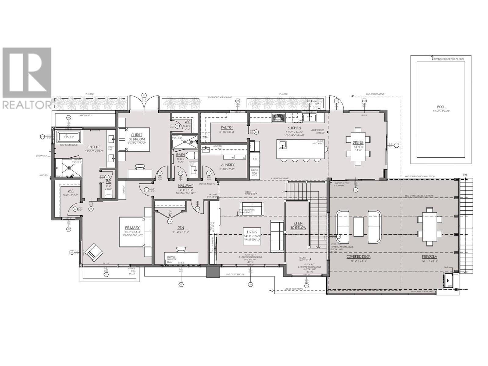
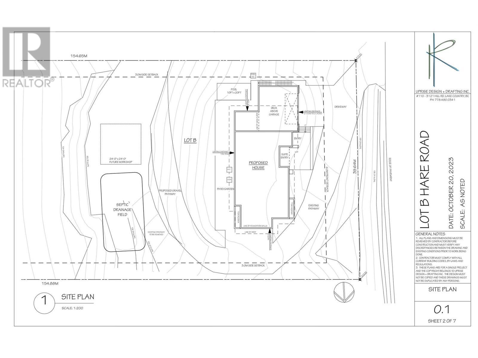
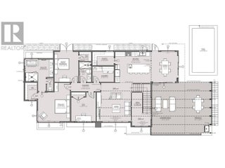
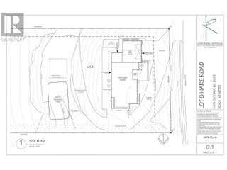
Description
Rare 1.52 acre lake-view building lot in the prestigious Okanagan Centre area of Lake Country. Okanagan Lake is just a quick walk away via the 6th st. walking path located a minute to the North! Along the water are several waterfront parks, cafes, and boat launches! Gray Monk Winery, Arrowleaf Cellars, and Ex Nihilo Vineyards are also in close proximity (less than 5 minute drive!). The owner has recently completed a topo-survey, and has spent 15K+ on design work with Uprise Designs, of which we can transfer over to a new buyer! The lot has a relatively consistent grade, with a roughed-in driveway and building site on the western side of the property. One may choose to build higher on the lot (further east) to capitalize further on the lake views! The property is RR2 zoned (rural residential) and not in the ALR. There is a municipal water line (Capital Charge is applicable) at the road, and a septic permit will be required. There are no timeline restrictions to build and no building scheme to adhere to. This is an outstanding opportunity to build your dream home on a large lot in Okanagan Centre on a quiet, dead-end road, surrounded by local orchards and vineyards. Please be respectful of neighbors when viewing the property and arrange to view with an agent. (id:6289)
11091 Hare Road - Subdivision Statistics
| Avg. asking price | $1,574,918 |
| Price per sq. ft. | $657 |
| Median price | $1,256,950 |
| Number of homes for sale in Lake Country South West | 100 |
| Number of homes for sale in Lake Country | 247 |
| Avg. Days on Market | N/A |
Essential Information
- Listing #10342290
- Price$549,000
- Bathrooms0.00
- Acres1.52
- TypeVacant Land
- Sub-TypeOther
Amenities
- Is WaterfrontYes
- WaterfrontOther
View
Lake view, Mountain view, Valley view
Additional Information
- ZoningUnknown
Community Information
- Address11091 Hare Road
- SubdivisionLake Country South West
- CityLake Country
- ProvinceBritish Columbia
- Postal CodeV4V2H6
Utilities
Cable, Electricity, Natural Gas, Telephone, Water
Interior
- Interior FeaturesDrywall
Similar Properties to MLS® #10342290
10386 Nighthawk Road, Lake Country South West, , V4K2K7
- 1.52 Acres
Vacant Land
Lake Country, British Columbia
Experience Breathtaking Unobstructed Panoramic Lake And Mountain Views On This Stunning 1.52-acre Lakefront Property In Desirable Lake Country. This Exceptional 66' X 960' Lot On Established Nighthawk Road Offers A Tranquil Sanctuary With N ...(more)
11635 Pretty Road Lot# Registered, Lake Country South West, , V4V1G8
- 0.46 Acres
Vacant Land
Lake Country, British Columbia
Registered Building Lot With Incredible Lake Views. A Few Blocks From The Lake. Watch Your Boat Docked At Turtle Bay From Your Backyard! Single Family Home Or Small Scale Multiple Housing Zoning. Water, Gas And Sewer At Lot Line. Build ...(more)

























