1643 Touriga Place Lot# 7. West Kelowna, British Columbia V4T3B5

$3,899,000

Mortgage Calculator

Down Payment: Monthly Payment:
  • 8 Beds
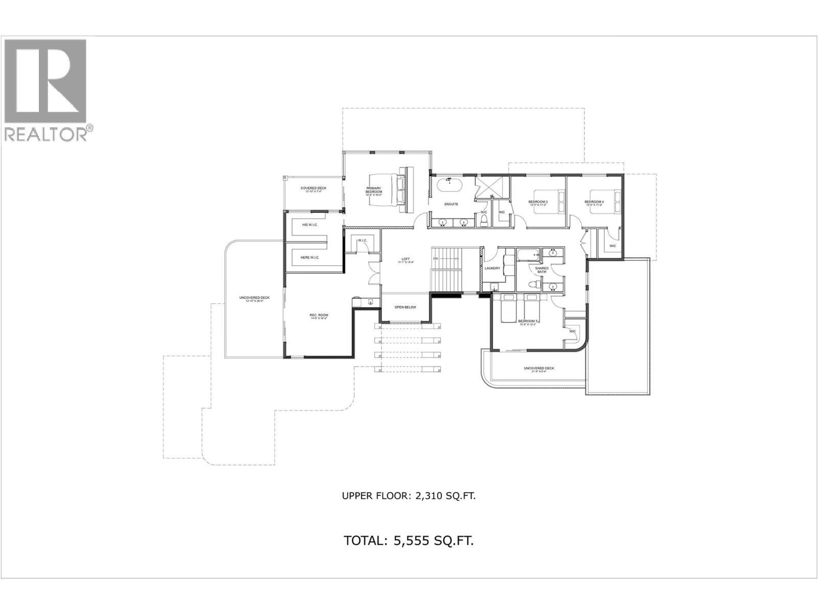
  • 5,555 SqFt
  • $701.89 / SqFt
  • Neighbourhood: Lakeview Heights
  • HOA: N/a
  • MLS® #: 10347378
  • Year Built: 2025

Schedule a Tour

Wednesday
18
Feb
Thursday
19
Feb
Friday
20
Feb
Saturday
21
Feb
Sunday
22
Feb
Monday
23
Feb
Tuesday
24
Feb
Wednesday
25
Feb
Thursday
26
Feb
Friday
27
Feb
Saturday
28
Feb
Sunday
1
Mar
Monday
2
Mar

Take a tour with a buyer's agent

Request this time
It's free, with no obligation - cancel any time.

MLS® 10347378 is as 5,555sqft House located at 1643 Touriga Place Lot# 7, in West Kelowna British Columbia. The property features 8 bedrooms, and 5.00 bathrooms.

Description

Solid built custom home in West Kelowna's highly desirable Vineyard Estates. With over 5,550sf of finished living space, this Lakeview Heights property leaves little reason to leave home. The unique architecture incorporates a contemporary style with curvature elements reminiscent of caribbean ocean front villas. This property is one of a kind, sits on ~.47 acres of flat, useable land w/ unobstructed, panoramic views & situated on a quiet cul-de-sac near parks, schools, wineries & hiking. Unrivalled craftsmanship & luxury, this masterpiece will take you on a journey with its timeless, sleek style and use of natural materials. Entering the grand foyer, you're welcomed by 2-storey ceilings & glass that provides a clean line of vision straight through the main floor & locks onto the mesmerizing lake views. Open concept w/ large great rm, gourmet kitchen, walk-in pantry, dining & 2 bedrms/office on main flr provides comfort, usability & clean sight lines oriented towards the views from all rooms. 4 bedrms, laundry & secondary family rm upstairs helps accommodate efficient family life. Oversize, 2-bed legal suite w/ patio, views & independent heating/cooling is perfect for personal use, guests or tenants. Pool & expansive, flat yard makes for perfect Summer entertainment. Totalling 8 beds, 5 baths, astonishing lake views in a perfect location, this solid, vast luxury property provides value seldom seen & rarely built today. The oversize garage is also ideal for boat or RV storage. (id:6289)

1643 Touriga Place Lot# 7 - Subdivision Statistics

Avg. asking price $1,513,353
Price per sq. ft. $477
Median price $1,066,500
Number of homes for sale in Lakeview Heights 152
Number of homes for sale in West Kelowna 555
Avg. Days on Market N/A

Essential Information

  • Listing #10347378
  • Price$3,899,000
  • Bedrooms8
  • Bathrooms5.00
  • Square Footage5,555
  • Acres0.47
  • Year Built2025
  • TypeSingle Family
  • Sub-TypeHouse

Amenities

  • Parking Spaces6
  • # of Garages3
  • GaragesAttached Garage, Heated Garage
  • Has PoolYes
  • PoolInground pool, Pool

Utilities

Cable, Electricity, Natural Gas, Telephone, Sewer, Water

Parking

Additional Parking, Attached Garage, Heated Garage, Oversize, RV, Street

Interior

  • HeatingForced air, Other, See remarks
  • BasementCrawl space
  • FireplaceYes
  • # of Fireplaces1
  • FireplacesGas
  • # of Stories2

Appliances

Refrigerator, Dishwasher, Freezer, Range - Gas, Humidifier, Microwave, Hood Fan, Washer & Dryer, Wine Fridge

Exterior

  • ExteriorCedar Siding, Stone, Stucco
  • RoofOther

Lot Description

Cul-de-sac, Level lot, Private setting, Corner Site, Central island, Three Balconies

Community Information

  • Address1643 Touriga Place Lot# 7
  • SubdivisionLakeview Heights
  • CityWest Kelowna
  • ProvinceBritish Columbia
  • Postal CodeV4T3B5

Amenities

Park, Recreation, Schools, Shopping

Features

Cul-de-sac, Level lot, Private setting, Corner Site, Central island, Three Balconies

View

Unknown, City view, Lake view, Mountain view, View of water, View (panoramic)

Interior Features

Hardwood, Tile,,,,,,Security system,,,,,,,,,,Drywall

Cooling

Central air conditioning, See Remarks

Exterior Features

Landscaped, Level, Underground sprinkler

Listing Details

  • Listing OfficeRE/MAX Kelowna
REALTOR.ca logo

Similar Properties to MLS® #10347378

1879 Jennens Road, Westbank Centre, , V4T2C9

  • 4 Beds
  • 3 Baths
  • 3,039 SqFt

Single Family

West Kelowna, British Columbia

Lakefront Luxury Living On Okanagan Lake – 1879 Jennens Road, West Kelowna Welcome To 1879 Jennens Road, A Rare And Stunning Lakefront Retreat That Captures The Very Best Of Okanagan Living. Nestled On The Shores Of Okanagan Lake In West Ke Lakefront Luxury Living On Okanagan Lake – 1879 Jennens Road, West Kelowna Welcome To 1879 Jennens Road, A Rare And Stunning Lakefront Retre ...(more)

The Agency Kelowna

2311 Campbell Road, Lakeview Heights, , V1Z1S9

  • 4 Beds
  • 6 Baths
  • 3,895 SqFt

Single Family

West Kelowna, British Columbia

Estate Sale! Gorgeous, Substantially Renovated Waterfront Home In A Park-like Setting In Sought-after Casa Loma. This Property Offers Approx. 200 Ft Of Shoreline & A Private Dock W/ A Lift In Place For Up To 8,000 Lbs. Situated On A Large 0 Estate Sale! Gorgeous, Substantially Renovated Waterfront Home In A Park-like Setting In Sought-after Casa Loma. This Property Offers Approx ...(more)

Unison Jane Hoffman Realty

3672 Green Bay Landing, Lakeview Heights, Green Bay Landing, V4T2B7

  • 7 Beds
  • 8 Baths
  • 5,533 SqFt

Single Family

West Kelowna, British Columbia

Located Within One Of West Kelowna’s Most Desirable Gated Lakefront Communities, Green Bay Landing. This Custom Residence Offers A Picturesque Blend Of Thoughtful Design, Refined Finishes, And Exceptional Livability. Set Along The Tranquil Located Within One Of West Kelowna’s Most Desirable Gated Lakefront Communities, Green Bay Landing. This Custom Residence Offers A Pictures ...(more)

Unison Jane Hoffman Realty
Request a showing of 1643 Touriga Place Lot# 7, a 8 bedroom, 5.00 bathroom House in Lakeview Heights, West Kelowna. Built in 2025 and approximately 5,555 square feet in size, MLS #10347378 is currently listed for $3,899,000. To schedule a property tour, contact us at KelownaHomes.ca