10750 Highway 97 Highway, Lake Country South West, , V4V1V3
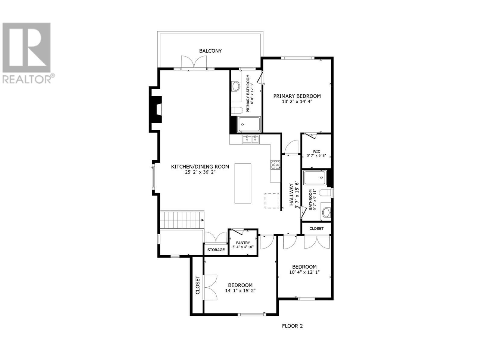
- 4 Beds
- 2 Baths
- 2,590 SqFt
Single Family
Lake Country, British Columbia
**incredible Opportunity In Lake Country** Set On 2.58 Private, Panoramic Acres With Breathtaking Views Of Wood Lake And The Surrounding Mountains, This One-of-a-kind Property Offers A Rare Combination Of Residential Living And Income-gener ...(more)











































































































