534 Feathertop Way Lot# 57. Big White, British Columbia V1P1P3
Description
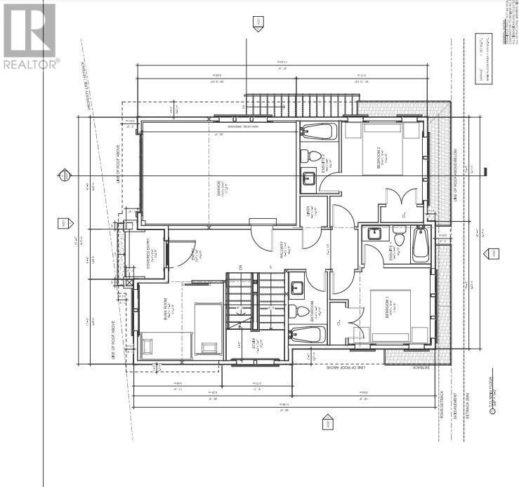
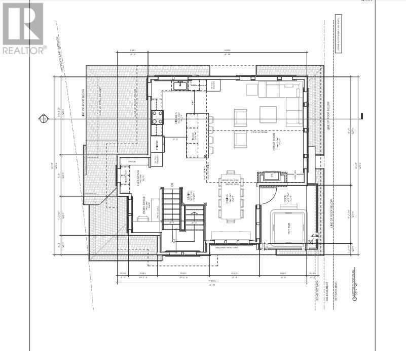
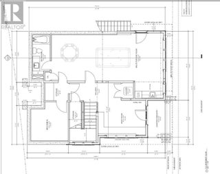
Build your dream mountain escape in one of the last remaining lots in this exclusive and sought-after neighborhood. Wake up each day to breathtaking panoramic mountain views and unwind in the evening with spectacular sunsets—nature’s perfect backdrop for creating lifelong memories. This fully serviced lot comes complete with building plans and is ready when you are—bring your own builder with no building timeline restrictions. Whether you envision cozy nights in a custom-designed chalet or entertaining family and friends in your private hot tub, this site is made for connection, comfort, and relaxation. Just a short stroll to the village and a quick ski-out to the runs, the location strikes the ideal balance between convenience and peaceful seclusion. Surrounded by high-end homes and premium lots, this setting adds significant value and prestige to your investment. Additional highlights include: Exceptionally low monthly strata fees, Short-term rentals allowed, No FOREIGN BUYER BAN, NO SPECULATION TAX Don’t miss this rare chance to own a piece of paradise in one of the mountain’s most desirable enclaves. The perfect setting for your forever getaway or a luxury investment opportunity. (id:6289)
534 Feathertop Way Lot# 57 - Subdivision Statistics
| Avg. asking price | $900,405 |
| Price per sq. ft. | $606 |
| Median price | $674,900 |
| Number of homes for sale in Big White | 101 |
| Number of homes for sale in Big White | 96 |
| Avg. Days on Market | N/A |
Essential Information
- Listing #10356331
- Price$299,000
- Bathrooms0.00
- Acres0.07
- TypeVacant Land
- Sub-TypeOther
Amenities
- AmenitiesRecreation, Schools, Ski area
- ViewView (panoramic)
Interior
- Interior FeaturesDrywall
Community Information
- Address534 Feathertop Way Lot# 57
- AreaFeathertop Estates
- SubdivisionBig White
- CityBig White
- ProvinceBritish Columbia
- Postal CodeV1P1P3
Utilities
Cable, Electricity, Natural Gas, Telephone, Water
Listing Details
- Listing OfficeMacdonald Realty

















































