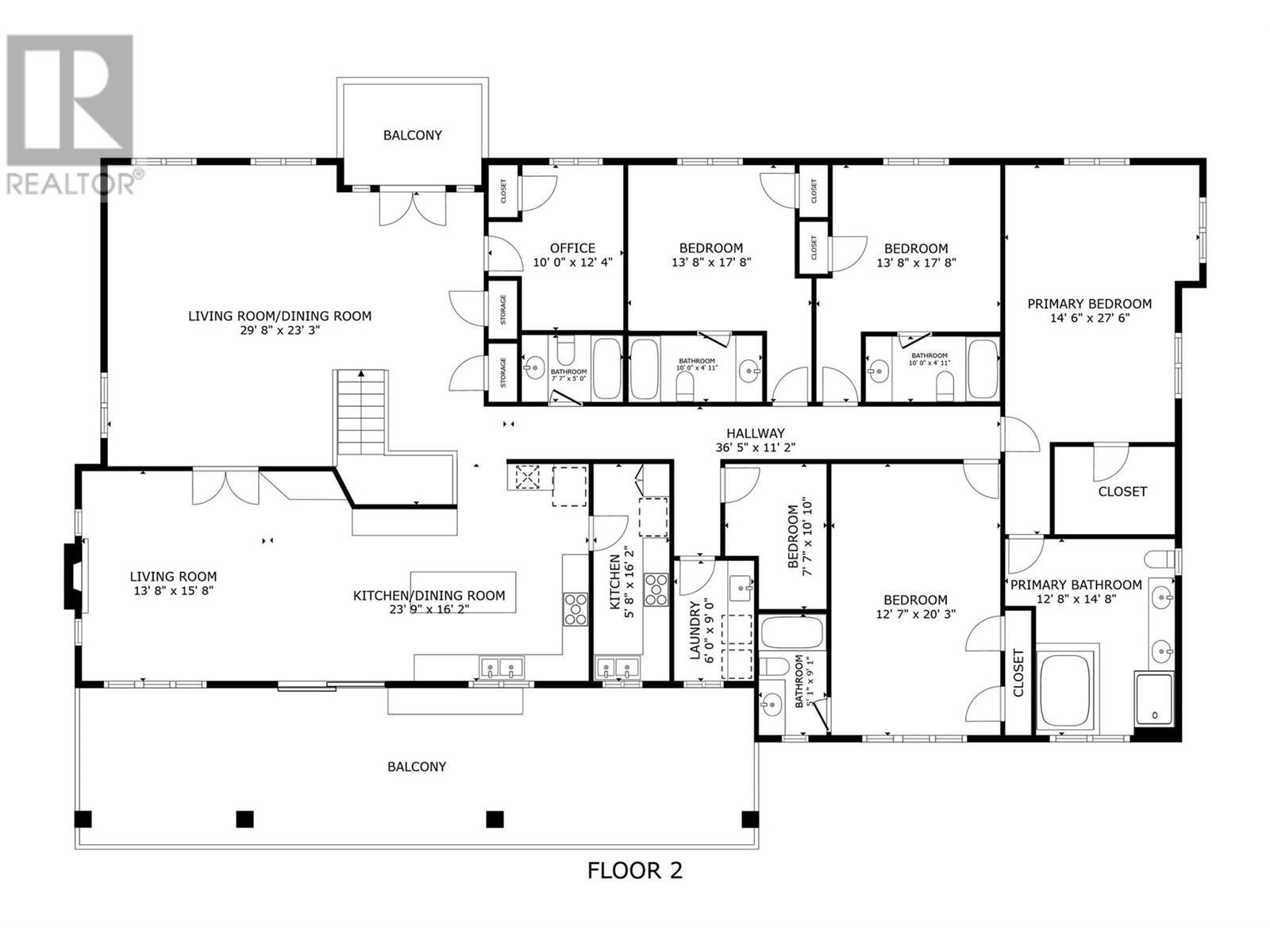
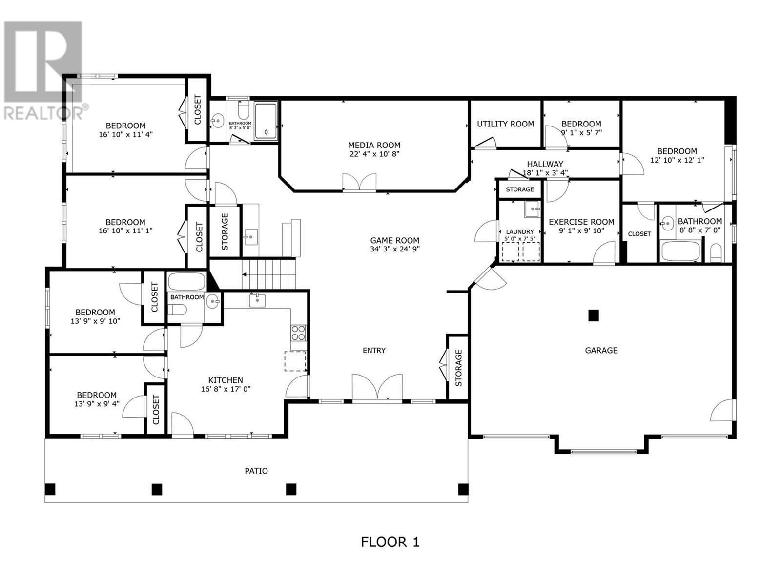
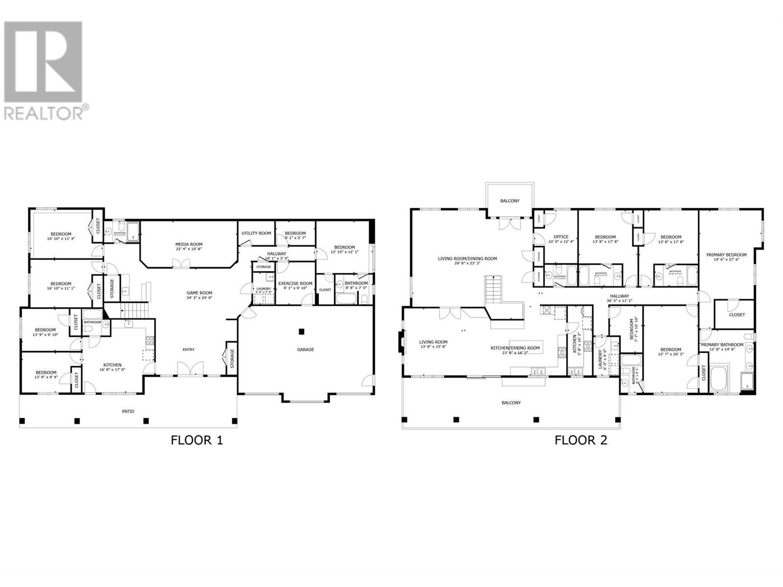
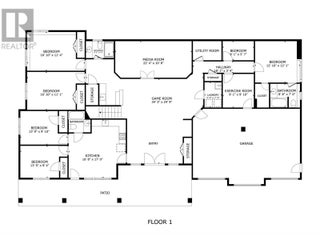
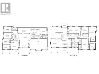
4324 Russo Street, Lower Mission, , V1W0B6
- 4 Beds
- 3 Baths
- 3,456 SqFt
Single Family
Kelowna, British Columbia
Experience Luxury Living At Its Finest With This Custom-built Masterpiece Nestled In The Heart Of Lower Mission, Just Minutes From The Lake And Beaches. This 4-bedroom 3-bathroom Home Showcases Top-level Finishes And Premium Appliances Thro ...(more)







































































































































