11915 La Costa Lane, Osoyoos, , V0H1V4
- 0.24 Acres
Vacant Land
Osoyoos, British Columbia
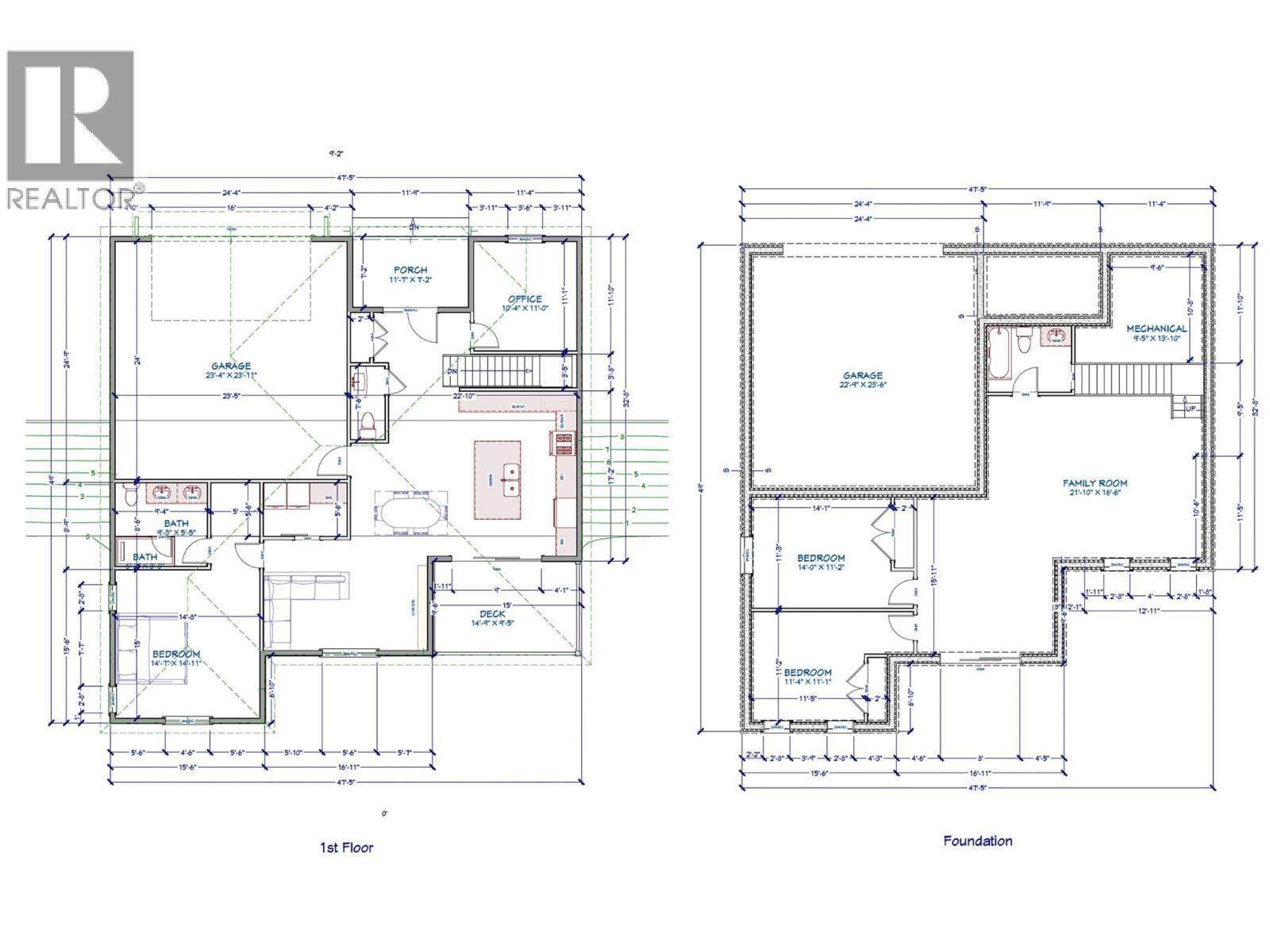
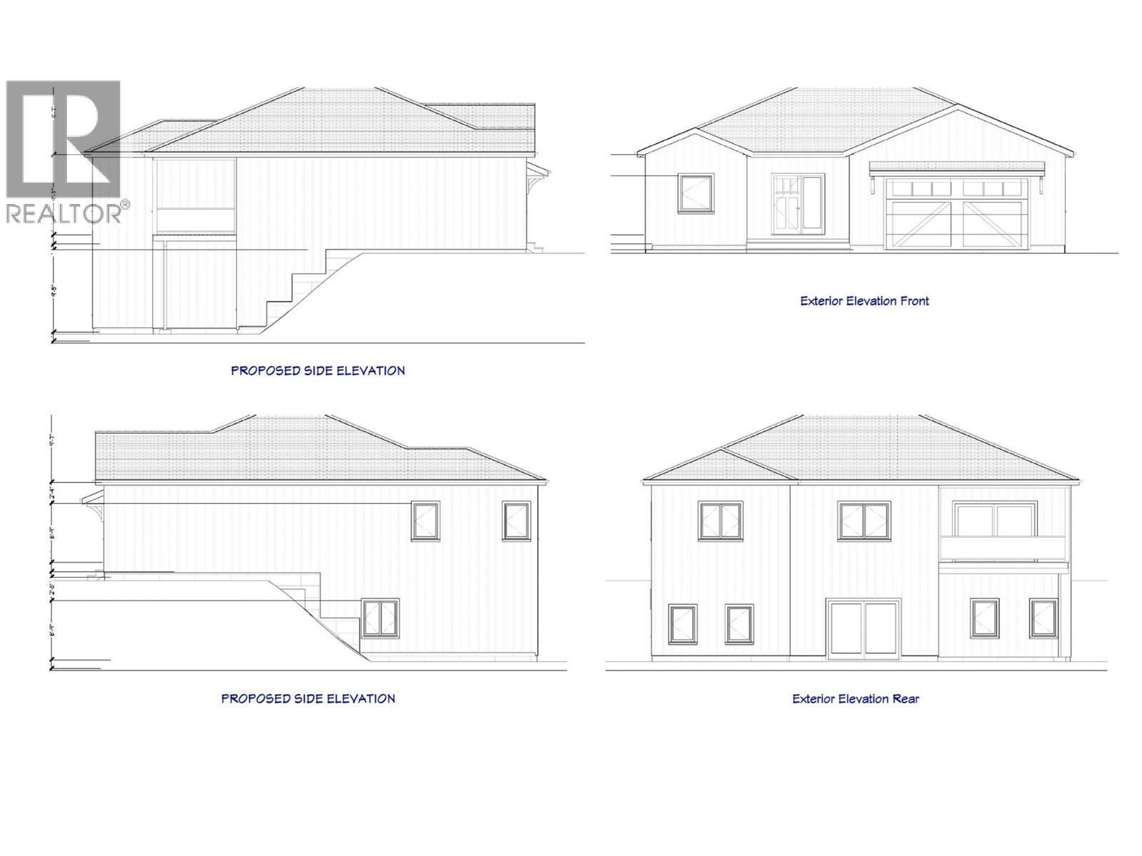
Fantastic Oversized Residential Building Lot In Dividend Ridge, Ideally Located Near The Osoyoos Golf Club. The Gentle Slope Is Perfectly Suited For A Level-entry Rancher With A Walk-out Basement, Maximizing The Beautiful Northeast-facing V ...(more)































