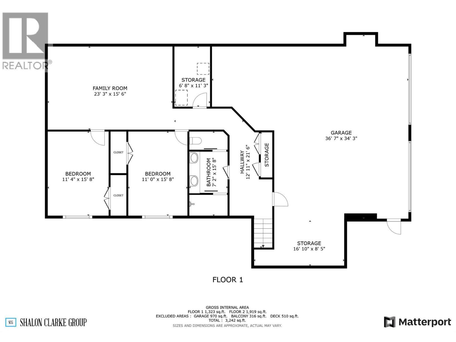
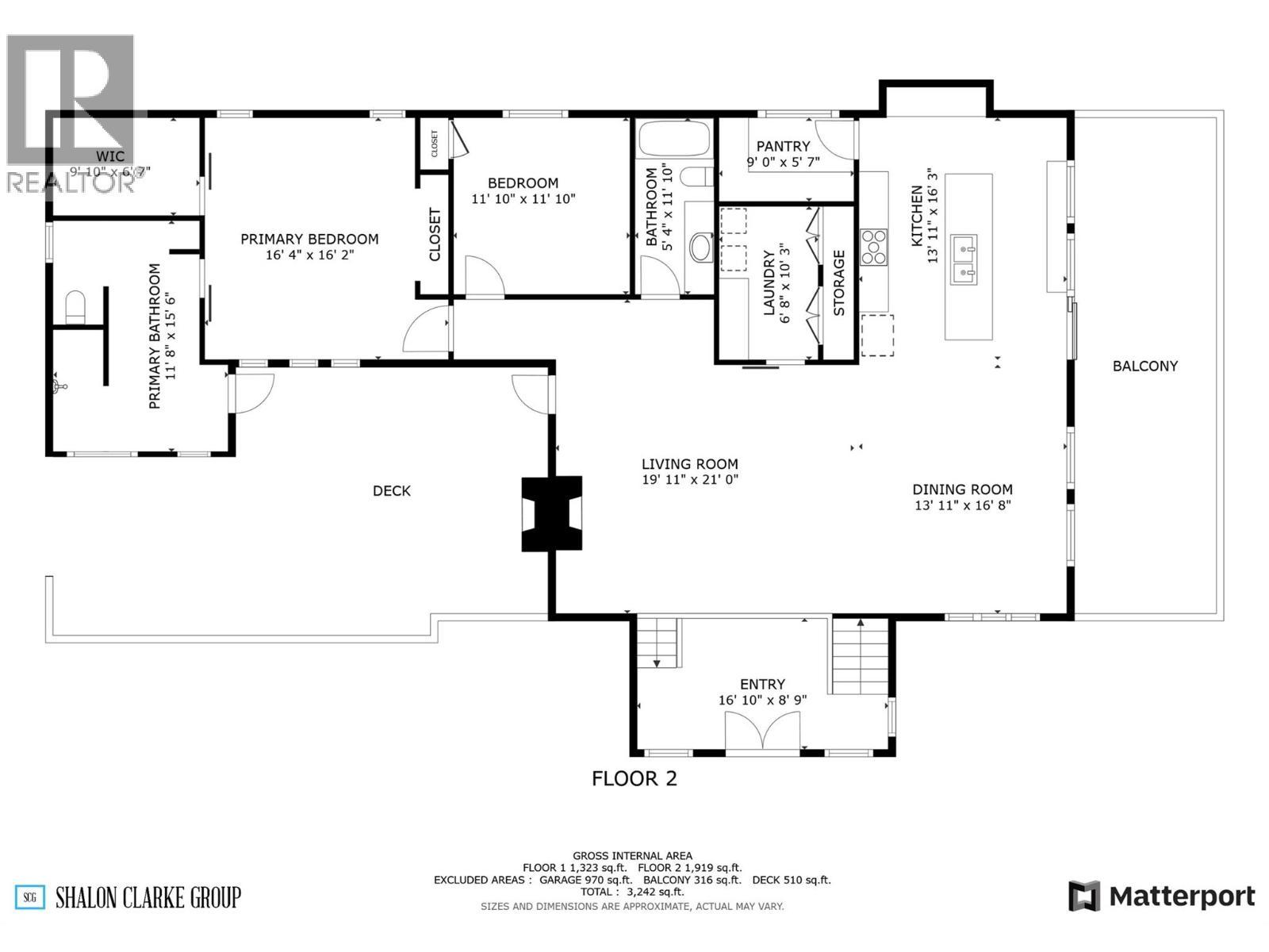
2726 Tranquil Place, Blind Bay, , V0E1H2
- 3 Beds
- 3 Baths
- 2,030 SqFt
Single Family
Blind Bay, British Columbia
Nestled In The Trees Is Your Own Personal Retreat, On Two Lots With Separate Titles. Very Close To Beaches, Restaurants, And More! Turnkey! All Furnishings Included Except For Personal Items. This Home Has 3 Bedrooms And 3 Full Bathrooms. T ...(more)































































































































