1440 Trinity Valley Road, Lumby Valley, , V0E2G0
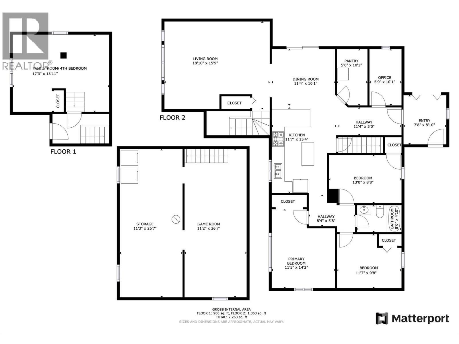
- 3 Beds
- 2 Baths
- 1,630 SqFt
Single Family
Lumby, British Columbia
If You Have Been Dreaming About Getting Away From It All And Having A Little Slice Of Heaven To Raise Your Kids And Animals, Look No Further! This Home Is Set On Just Over 31 Acres And Is Ready For Your Ideas; With 3 Bedrooms Plus A Den And ...(more)













































































































