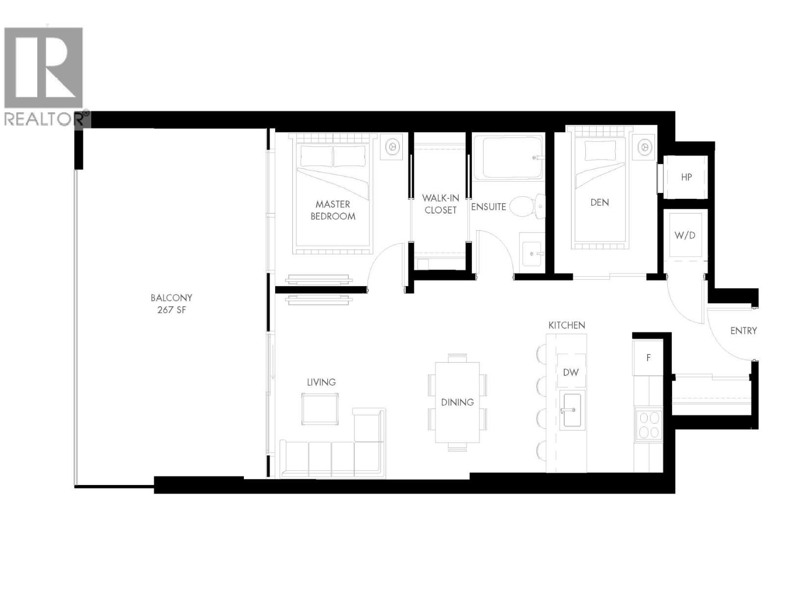
400 Sutton Crescent Unit# 110, Glenmore, Orchard Brook Village, V1V1Y3
- 2 Beds
- 2 Baths
- 1,158 SqFt
Single Family
Kelowna, British Columbia
Massive Price Improvement!! Now Priced To Sell This Condo Offers Exceptional Value! Discover Modern Urban Living In The Heart Of Glenmore. Perfectly Positioned With Restaurants, Bars, Groceries, Boutique Shops, Trendy Coffee Spots, And Pu ...(more)

















































































































































