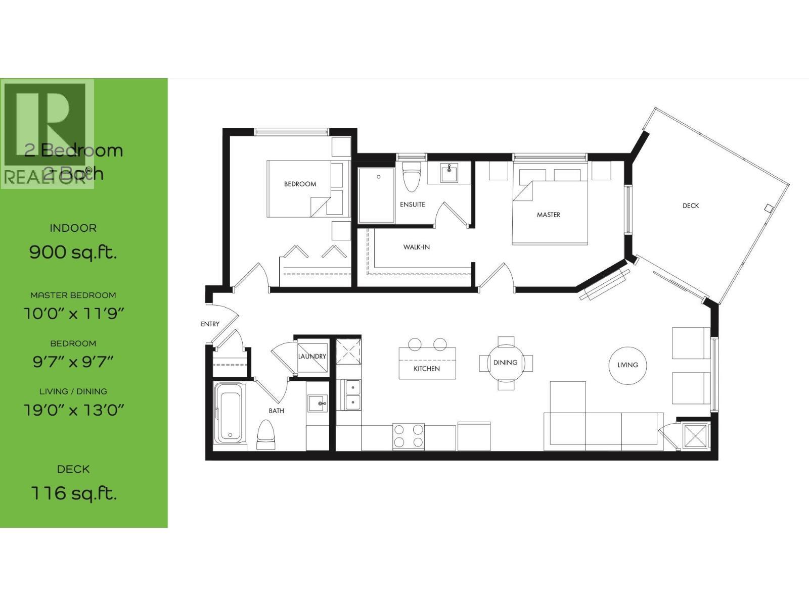
1479 Glenmore Road N Unit# 308, North Glenmore, Yaletown, V1V2C5
- 2 Beds
- 2 Baths
- 876 SqFt
Single Family
Kelowna, British Columbia
Welcome To Yaletown! This Top-floor, Corner Unit—with Only One Shared Wall—offers Exceptional Natural Light And Sweeping Views Of Open Fields And Roaming Livestock. Positioned In The Most Desirable Location Within The Complex, It Provides E ...(more)



















































