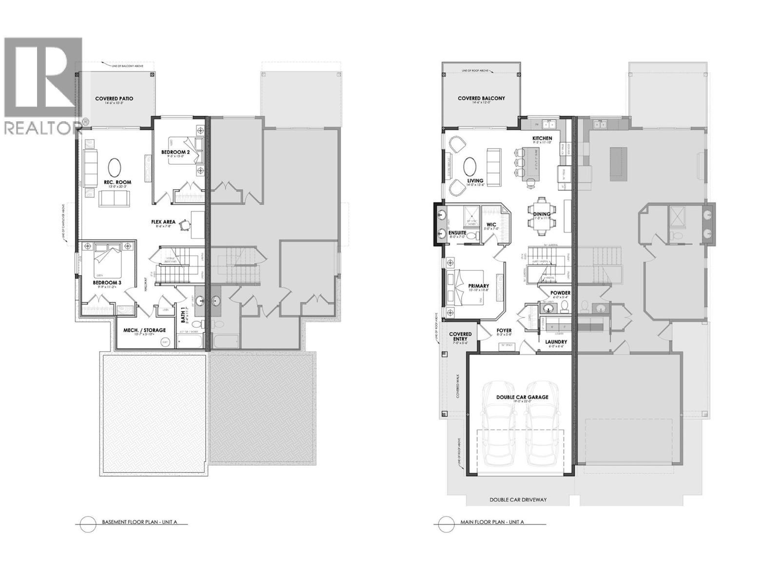
7005 Manning Place, Foothills, , V1B0B6
- 4 Beds
- 4 Baths
- 2,516 SqFt
Single Family
Vernon, British Columbia
Exception Value In The 4/5 Bedroom Villa With Finished Suite!!! Located In The Foothills Newest Subdivision At Manning Place. This Brand New Level Entry Villa With 3 Bedrms On The Upper Level, Kitchen, Living, Dining On The Main Level And W ...(more)



































































