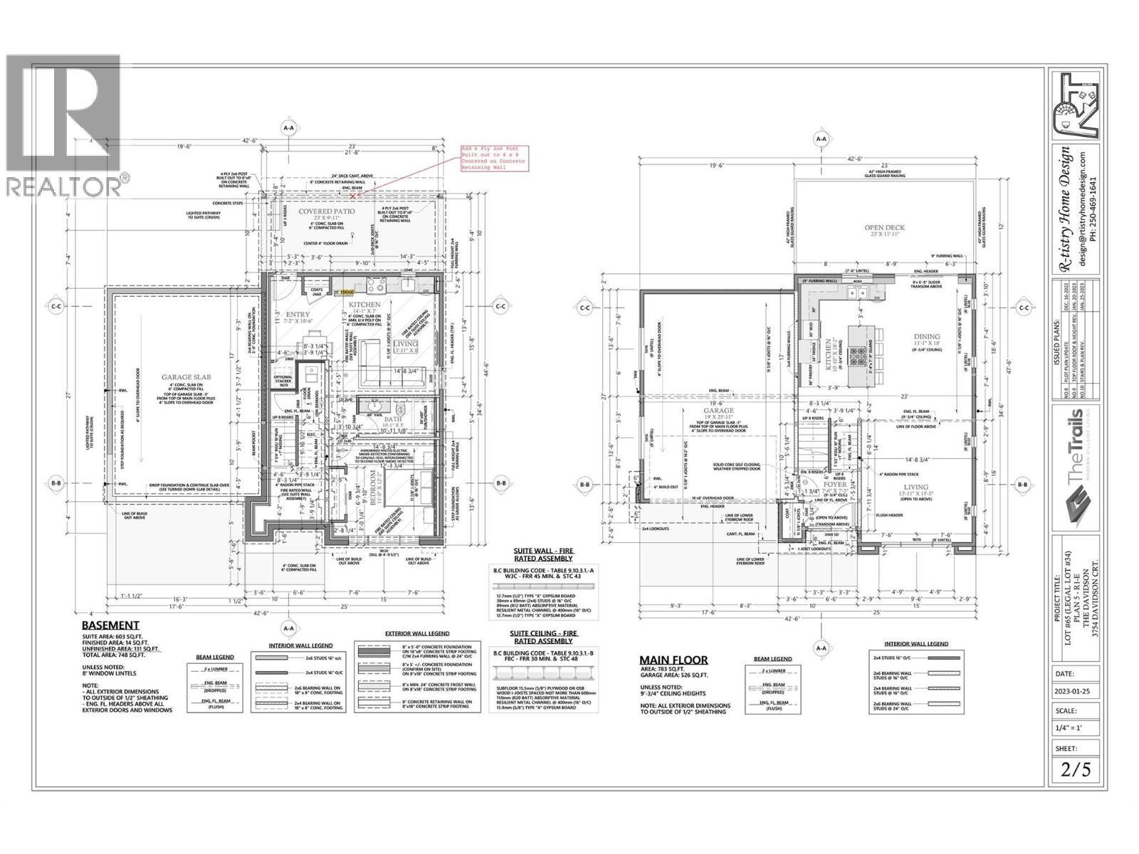
3074 Riesling Way, Lakeview Heights, , V4T0A5
- 5 Beds
- 4 Baths
- 3,213 SqFt
Single Family
West Kelowna, British Columbia
The Perfect Family Home! 5 Bed + Den Home Just Off The West Kelowna Wine Trail! Built In 2020, This Home Has Everything You're Looking For. 3 Bedrooms On The Same Floor, A Fenced Yard, Bonus Space, And Double Garage. The Open Main Floor Of ...(more)













































































