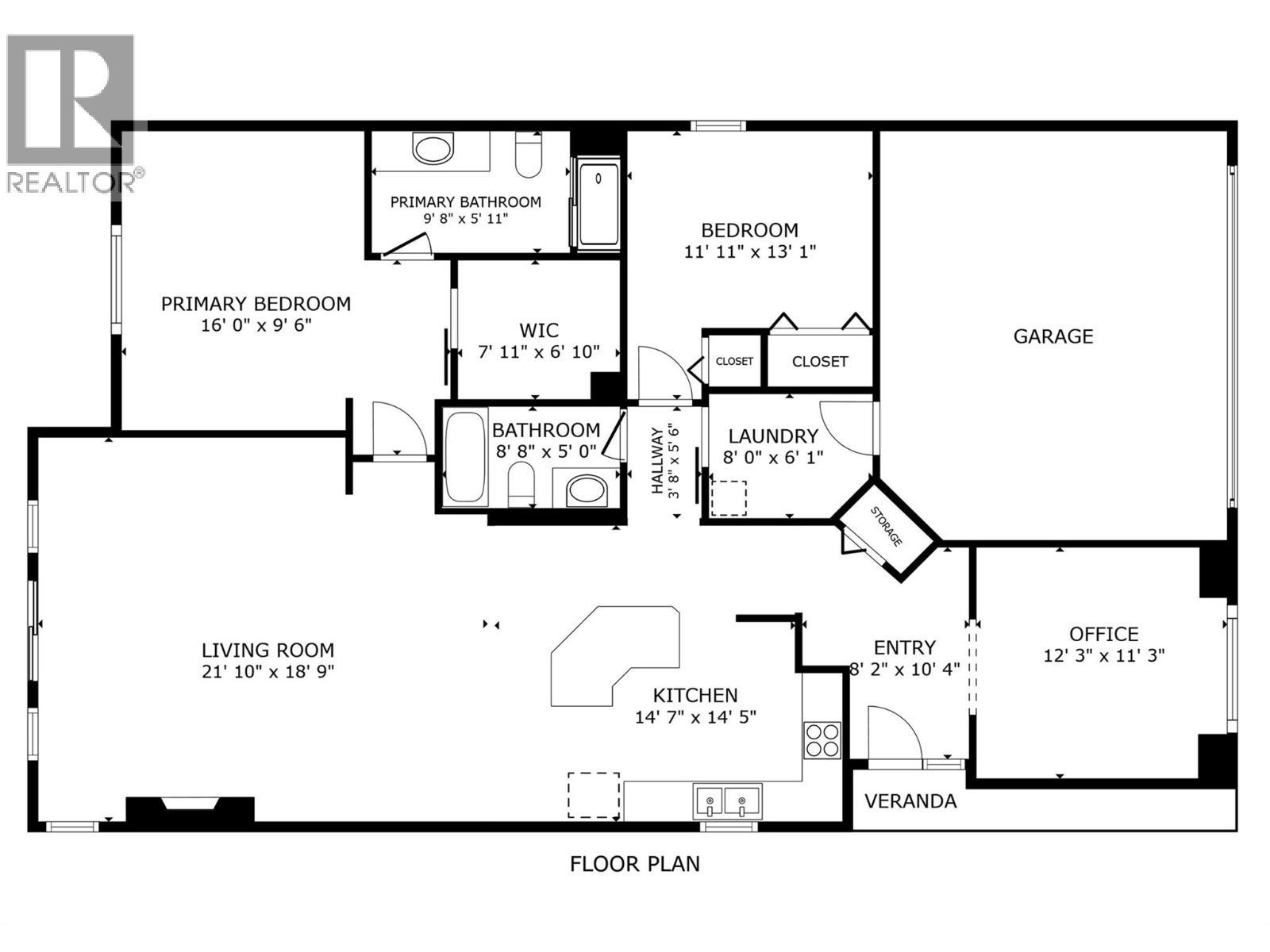
3125 Mciver Road, Glenrosa, , V4T1E7
- 3 Beds
- 3 Baths
- 1,979 SqFt
Single Family
West Kelowna, British Columbia
Tucked Away In The Quiet, Scenic Neighbourhood Of Glenrosa, This Beautifully Renovated 4-bedroom + Den Family Home Offers Exceptional Space, Comfort, And Checks All The Boxes For Investors, Families, Or Someone Simply Needing An Income Help ...(more)











































































