9400 115th Street Unit# 31, Osoyoos, Casitas Del Sol, V0H1V5
- 2 Beds
- 2 Baths
- 1,243 SqFt
Single Family
Osoyoos, British Columbia
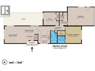
This Charming Single-story Property, Located At 9400 115th St, Unit 31, Osoyoos, Bc, Spans 1221 Square Feet. Inside, You'll Find Two Cozy Bedrooms And Two Bathrooms, Perfect For Comfort And Convenience. The Kitchen Is Ready To Meet All Your ...(more)











































































































